Pronájem výrobních prostor 243 m2 – Šebrov-Kateřina

Šebrov-Kateřina-Šebrov 21

25 000,- Kč/měsíc

Ve výhradním zastoupení nabízím k pronájmu komerční prostory pro výrobu a skladování s kancelářemi nacházející se
na adrese Šebrov č. p. 21, okres Blansko. Velmi dobrá dopravní dostupnost, vzdálenost obce od Brna je 13 km,

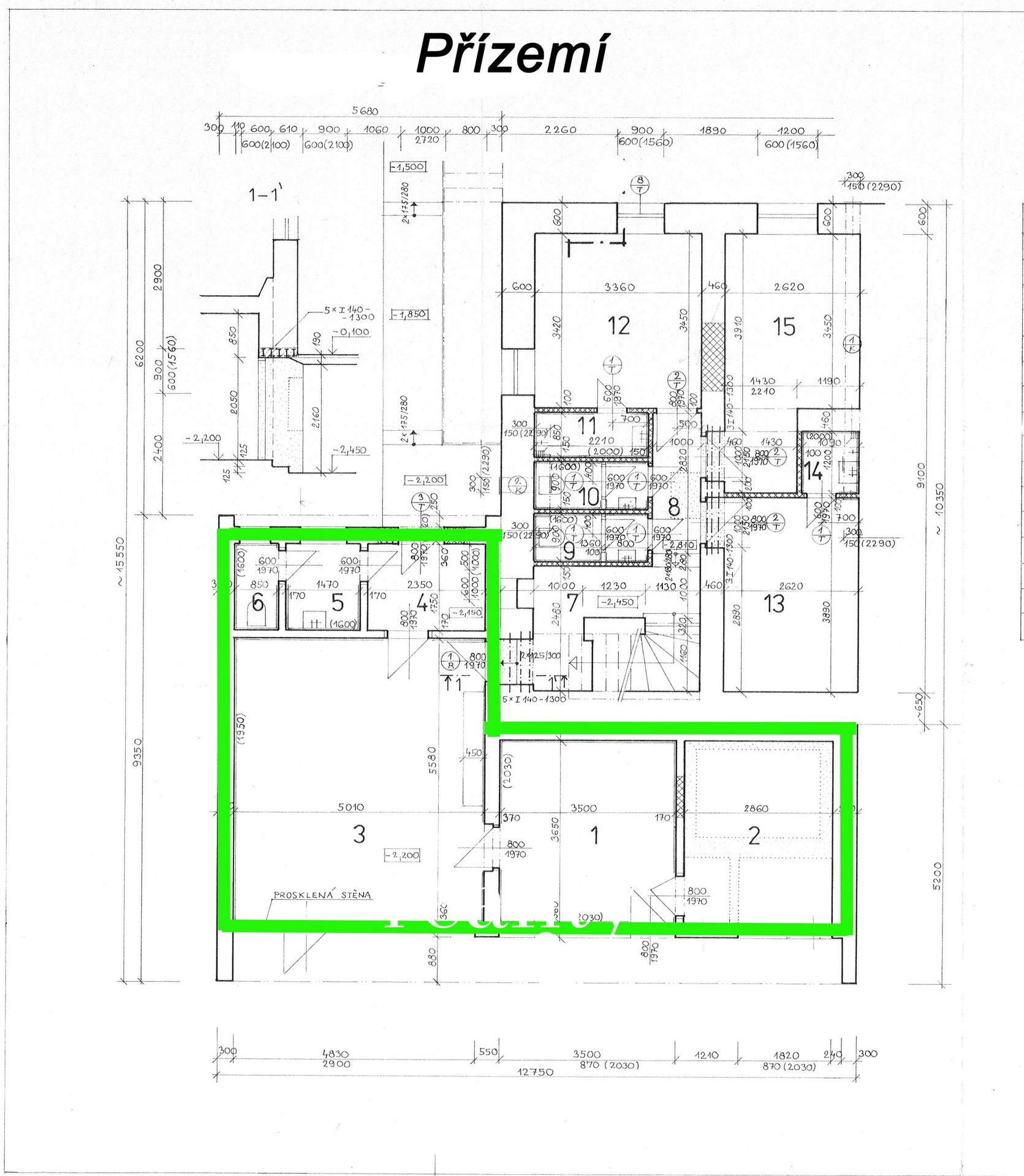
Předmětem pronájmu jsou prostory vyznačené v půdorysech, neoznačené jsou prostory společné (šatny, sprchy, WC,
kuchyňka, chodby), případně prostory užívané majitelem: – dílny v přízemí, k pronájmu místnosti 1,2,3,5,6 – 55,3 m2,
společné prostory – dílna v prvním patře, k pronájmu místnost 4 – 68,4 m2.společné prostory místnost 5 a 6 je užívána
majitelem. Přístup pro zásobování do prostor je z nákladové rampy. – dílna ve druhém patře 74,1 m2, – kanceláře ve
druhém patře, k pronájmu místnosti 3,4,5 – 45 m2 – ostatní jsou společné prostory.
Nájemní smlouvu lze uzavřít jak na dobu neurčitou, tak na dobu určitou. Majitel požaduje složení jistoty ve ve výši jednoho
měsíčního nájmu.

Měsíční záloha na energie spojené s užíváním pronajatých prostor je celkem 17.442,- Kč.
internet – 242,-Kč
plyn – 10.000,-Kč
elektřina – 7000,-Kč
vodné+ stočné – 200,-Kč

PENB nebyl dodán proto uvádíme hodnotu G.

V případě zájmu o prohlídku mě neváhejte kontaktovat a domluvit si osobní prohlídku.

Máte zájem o tuto nemovitost?

Vážení klienti, pokud Vás tato nemovitost zaujala, můžete kontaktovat uvedeného makléře přímo nebo skrze kontaktní formulář. V případě využití formuláře souhlasíte s Podmínkami ochrany osobních údajů.